











Rezervováno
Tento byt je bez provize! Nabízím k pronájmu útulný a plně zařízený byt 1+kk s velkou terasou v atraktivní lokalitě Plzeň – Jižní Předměstí. Tento byt je ideální pro ty, kteří hledají pohodlné a praktické bydlení s výbornou dostupností do centra i ke kampusu ZČU. Interiér je vybaven moderní kuchyňskou linkou, dostatkem úložného prostoru a pohodlným zařízením pro komfortní každodenní život. Velká terasa je ideálním místem pro ranní kávu, odpočinek po práci nebo posezení s přáteli na čerstvém vzduchu. V přízemí domu je k dispozici společná prádelna s pračkou a sušičkou, které lze využívat za poplatek, což šetří místo přímo v bytě. Jižní Předměstí patří mezi nejžádanější plzeňské lokality díky klidnému prostředí, rychlému spojení MHD, blízkosti obchodů, kaváren, parků i pracovních center. Pokud hledáte moderní bydlení, kde budete mít vše potřebné na dosah a zároveň možnost užívat si prostornou terasu pro chvíle odpočinku, tento byt je pro vás skvělou volbou. Pro více informací či domluvení prohlídky mě neváhejte kontaktovat přes formulář, rád vám byt osobně ukážu.


K zobrazení mapy je nutné
povolit potřebné soubory cookies.
Své nastavení můžete kdykoliv změnit.
Služby spojené s užíváním bytu (tzn. plnění spojená s užíváním bytu nebo s ním související služby) zpravidla zahrnují položky uvedené v níže uvedeném seznamu. Jedná se o orientační výčet služeb s tím, že součástí mohou být i další jiné služby dle konkrétního vybraného bytu. Konkrétní přehled Vašich služeb souvisejících s užíváním bytu od nás obdržíte v evidenčním listu při podpisu smlouvy o nájmu. Zálohy na dodávku elektrické energie a plynu a platby za odvoz komunálního odpadu nejsou standardně součástí služeb spojených s užíváním bytu.
Smlouvu lze podepsat na tabletu biometrickým podpisem.
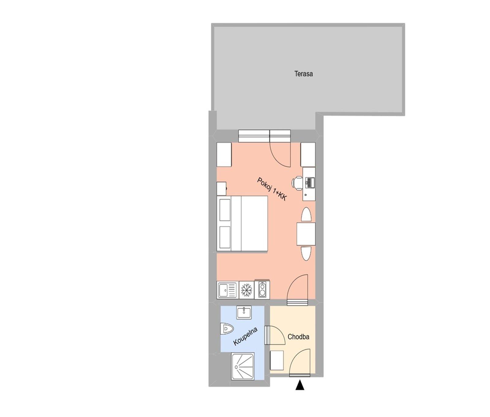
Pokud máte o tento byt zájem, zašlete nám svou e-mailovou adresu a telefonní číslo, abychom vás mohli co nejdříve kontaktovat. Dovolujeme si Vás upozornit, že fotografie a video (i 360° prohlídka) mohly být pořízeny v době, kdy byl byt plně nebo částečně zařízen nábytkem a vybavením, které standardně není součástí bytu. Některé fotografie bytu či vybavení (např. kuchyňské linky) mohou být pouze orientační, případně demonstrativní. Půdorys a fotografie mohly být také pořízeny z podobného bytu (např. z důvodu, že aktuálně probíhá v inzerovaném bytě rekonstrukce). Plocha bytu a sklepa (pokud je u bytu k dispozici) byla vypočítána na základě příslušné projektové dokumentace a může se lišit od skutečnosti. Z výše uvedených důvodů Vám doporučujeme, abyste si byt prohlédli osobně.
Pokud je váš rozpočet napjatý, s vysokými cenami energií může pomoci příspěvek na bydlení. Spočítejte si, zda máte na tento příspěvek nárok. Pokud ano, zažádejte si o něj buď online nebo osobně na Úřadu práce ČR. Orientační kalkulačku pro výpočet příspěvku na bydlení a další důležité informace najdete zde: www.mpsv.cz/dssp-kalkulacka.
Neostýchejte se o Dávku statní sociální pomoci požádat, jde o novou konsolidovanou dávku, která Vám pomůže nejen s náklady na bydlení.